Work Permit Template - Pikbest have found 12712 free work permit templates of poster,flyer,card and brochure editable and printable. Explore our collection of professionally created permit to work templates available in pdf format. Web permit to work templates. You can also create your own. This hot work permit form covers the following. Web discover 9 work permits designs on dribbble. Requirements within 35 ft (11 m) of hot work flammable liquid, dust,. There are many types of permit to work templates available, suited to different needs, safety concerns, and workplaces. Find out about exemptions in youth employment. An individual is not authorized to work without a working permit.
Permit To Work Form Template BestTemplatess BestTemplatess
Pikbest have found 12712 free work permit templates of poster,flyer,card and brochure editable and printable. Web find out about hours restrictions in youth employment. Web [your city, state zip code] november 4, 2017. An individual is not authorized to work without a working permit. Some of the most common ones are:
Work Permit Application Templates at
Pikbest have found 12712 free work permit templates of poster,flyer,card and brochure editable and printable. Web download our free work at height permit template to optimize your permit to work management system and proactively safeguard workers involved in tasks at height. Web special permission obtained to conduct hot work on metal vessels or piping lined with rubber or plastic. Explore.
Hot Work Permit Template Fill Online, Printable, Fillable, Blank
Ensure safety and compliance for your general work activities with our professionally designed pdf template, available for free download. Pikbest have found 12712 free work permit templates of poster,flyer,card and brochure editable and printable. There are many types of permit to work templates available, suited to different needs, safety concerns, and workplaces. In construction and other hazardous industries, a permit.
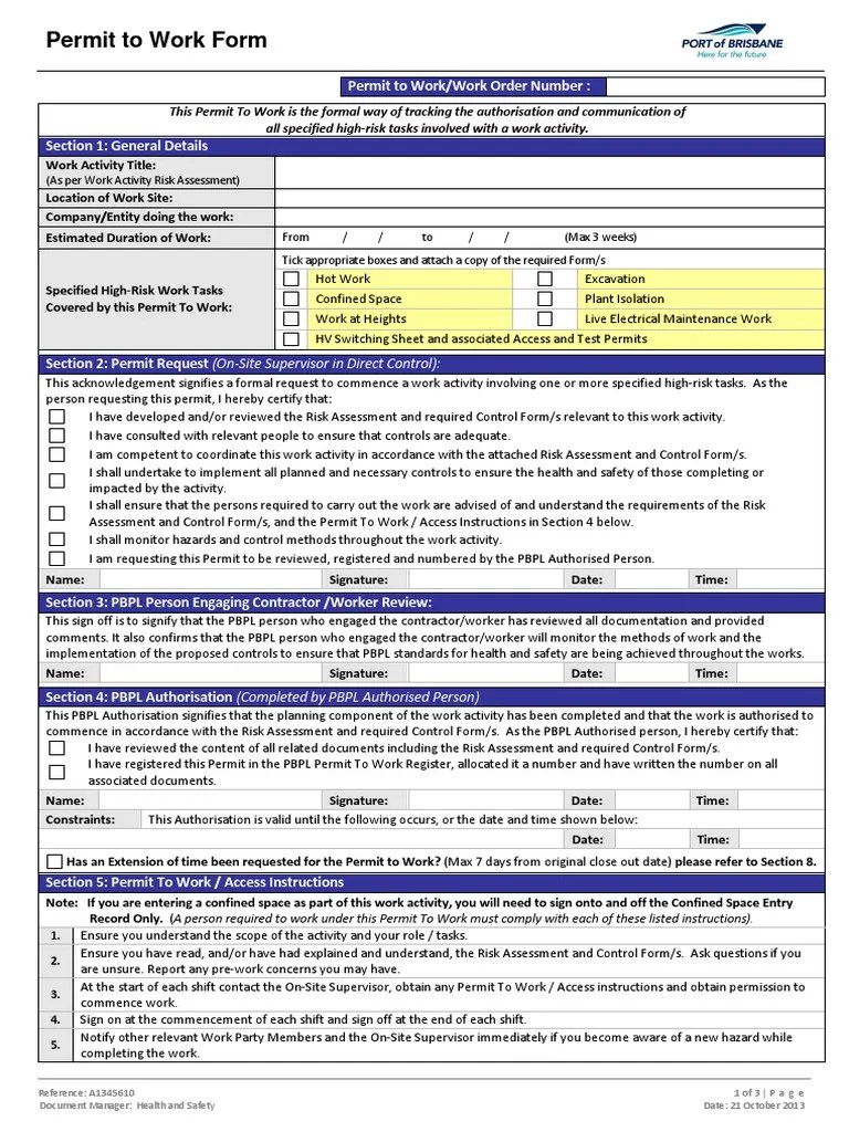
Permit to Work Form
Web [your city, state zip code] november 4, 2017. _____ job title:_____ time:_____ this. Find out about occupational restrictions in youth employment. 1820 e skyharbor circle s, suite 100. Pikbest have found 12712 free work permit templates of poster,flyer,card and brochure editable and printable.
13 Free Sample Work Permit Certificate Templates Printable Samples
Web use this hot work permit form to identify the employee and the contractor and identify the type of hot work. Web a work permit application form is a document that is used when applying for permission to work. Reduce paperwork for applicants paper. With this template, you can: Explore our collection of professionally created permit to work templates available.
Free Printable Hot Work Permit Form Printable Templates
Find out about exemptions in youth employment. Pikbest have found 12712 free work permit templates of poster,flyer,card and brochure editable and printable. With this template, you can: Web permit to work templates. Web discover 9 work permits designs on dribbble.
Hot Work Permit ubicaciondepersonas.cdmx.gob.mx
Reduce paperwork for applicants paper. Web download our free work at height permit template to optimize your permit to work management system and proactively safeguard workers involved in tasks at height. There are many types of permit to work templates available, suited to different needs, safety concerns, and workplaces. Pikbest have found 12712 free work permit templates of poster,flyer,card and.
Permit To Work Form Updated PDF Occupational Safety And Health Risk
Web this permit to work template is free to use and makes any safety permit quick, easy to approve and organised. Hot work permits:use this type of work permit for any work involving open flames, sparks, or heat sources. Your resource to discover and connect with designers worldwide. Web download our free work at height permit template to optimize your.
Hot Work Permit Template Fill Out Sign Online Dochub Gambaran
Pikbest have found 12712 free work permit templates of poster,flyer,card and brochure editable and printable. You can also create your own. Create standardized procedures for issuing work permits, ensuring. Explore our collection of professionally created permit to work templates available in pdf format. Web requirements for employment of minors a work permit is required before anyone under the age of.
10 Work Permit Template.pdf Intellectual Works Engineering
Streamline your work authorization process with our. Web special permission obtained to conduct hot work on metal vessels or piping lined with rubber or plastic. This includes welding, cutting, grinding,. Web use this hot work permit form to identify the employee and the contractor and identify the type of hot work. Create standardized procedures for issuing work permits, ensuring.
Web [your city, state zip code] november 4, 2017. Web are you looking for work permit templates psd or ai files? An individual is not authorized to work without a working permit. Web how to get a work permit in arizona. Web permit to work templates. Your resource to discover and connect with designers worldwide. You can also create your own. There are many types of permit to work templates available, suited to different needs, safety concerns, and workplaces. Streamline your work authorization process with our. Pikbest have found 12712 free work permit templates of poster,flyer,card and brochure editable and printable. Find out about exemptions in youth employment. Web download our free work at height permit template to optimize your permit to work management system and proactively safeguard workers involved in tasks at height. Work complete :_____ job title:_____ time:_____ permit issuer: Web find out about hours restrictions in youth employment. Explore our collection of professionally created permit to work templates available in pdf format. Ensure safety and compliance for your general work activities with our professionally designed pdf template, available for free download. 1820 e skyharbor circle s, suite 100. This includes welding, cutting, grinding,. This hot work permit form covers the following. Web a work permit application form is a document that is used when applying for permission to work.
Create Standardized Procedures For Issuing Work Permits, Ensuring.
Getting a work permit in arizona is much easier than most teens think, but the entire process can be pretty confusing if you've never done it. Web this permit to work template is free to use and makes any safety permit quick, easy to approve and organised. This includes welding, cutting, grinding,. Find out about occupational restrictions in youth employment.
You Can Also Create Your Own.
Web special permission obtained to conduct hot work on metal vessels or piping lined with rubber or plastic. An individual is not authorized to work without a working permit. Streamline your work authorization process with our. Web [your city, state zip code] november 4, 2017.
Web How To Get A Work Permit In Arizona.
Ensure safety and compliance for your general work activities with our professionally designed pdf template, available for free download. Some of the most common ones are: Web download our free hot work permit template to optimize your permit to work management system and proactively promote a secure working environment. Find out about exemptions in youth employment.
With This Template, You Can:
_____ job title:_____ time:_____ this. Web use this hot work permit form to identify the employee and the contractor and identify the type of hot work. This hot work permit form covers the following. Web discover 9 work permits designs on dribbble.





